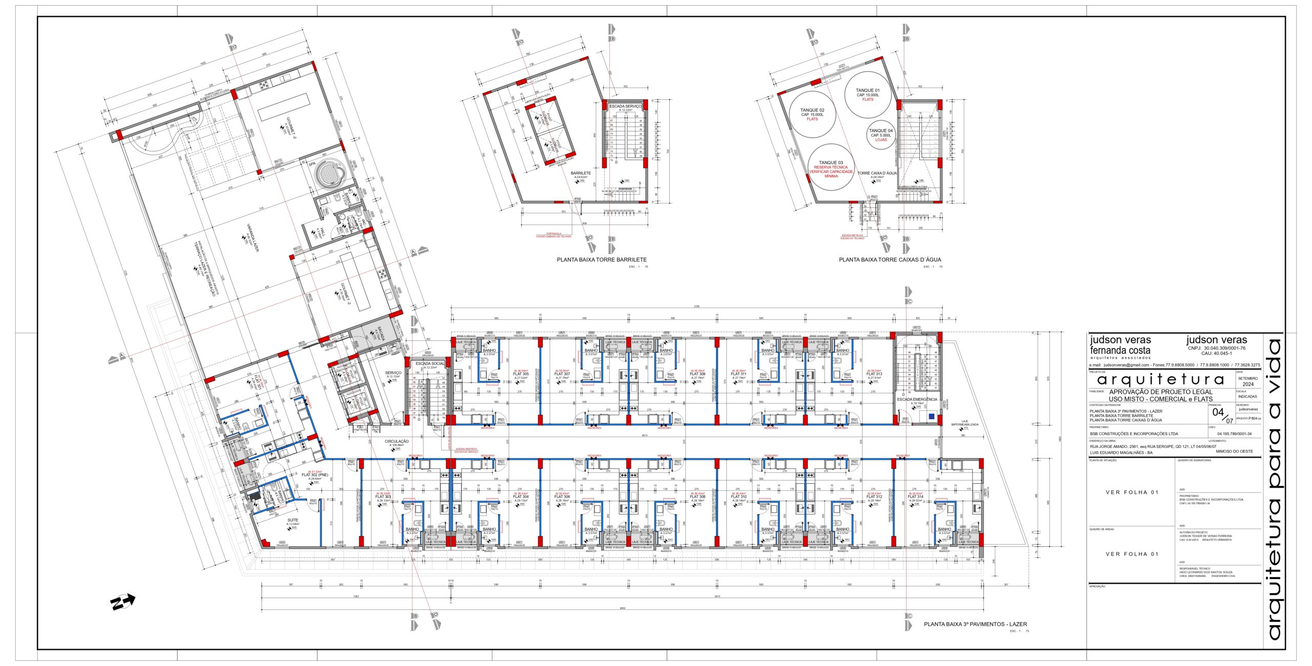
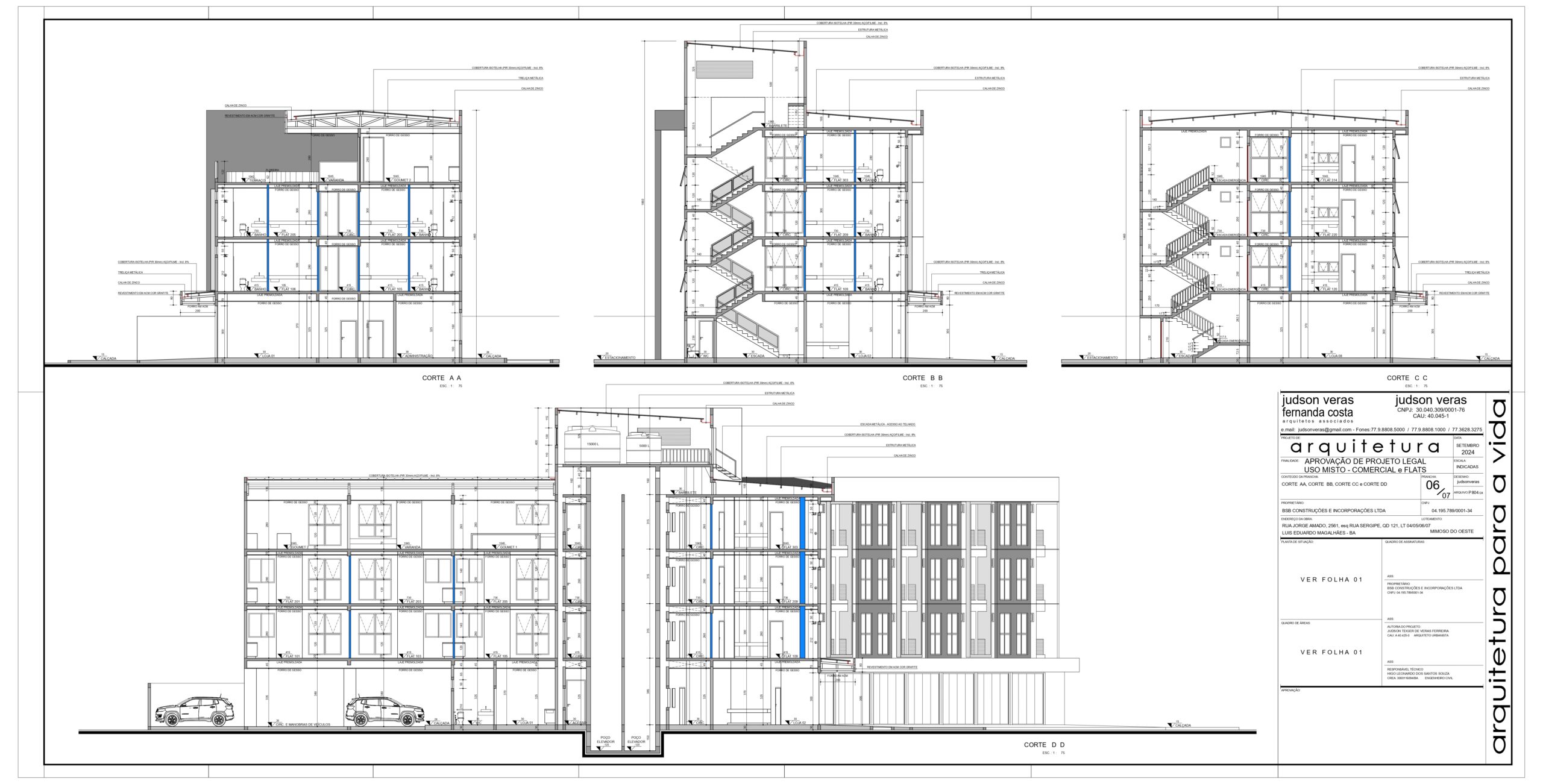
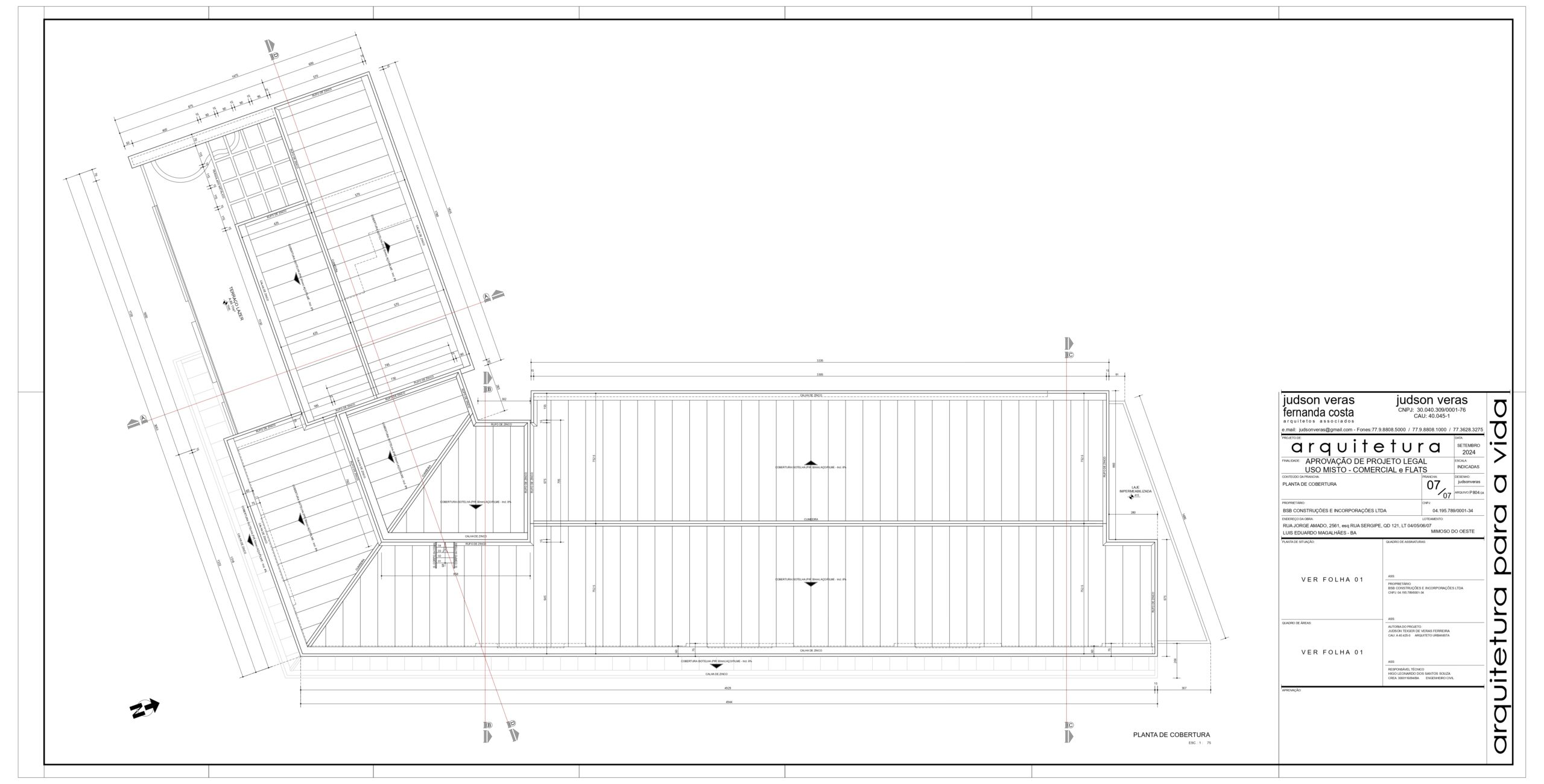
Clique abaixo para acessar imagens com melhor qualidade